C2401产品介绍

产品简介
C2401 是一款针对 Jetson Orin Nano 及 NX 核心卡进行研发的高密度小尺寸载板。在保证小体积的同时拥有完备的接口,如双网口、双 USB 接口,以及丰富的拓展能力,能拓展4G/5G 模块等接口。优秀的堆叠设计为改该载板带来良好的易用性。
正面
背面
产品特点
1.
fuse芯fuse 芯片,带来完备的过压、欠压保护、短路保护、过流保护、反接保护。
2. Buck芯 Buck 芯片,匹配先进的合金扁线电感,低发热,高饱和电流的特性能给核心卡带来稳定的供电。
3.8层2u沉2u 沉金塞孔工艺 PCB,配合小体积高密度设计,外围尺寸仅 55x92mm。
4. 5G支5G 支持PTP协 PTP 协议及高达 16K bytes巨bytes 巨型帧。
5.M.2接接口同面设计,带来良好的实用性,更换无线网卡、固态硬盘无需拆除核心卡且带有二次开发接口,可拓展 4G/5G网5G 网口等
产品规格
供电电压 |
12V
|
电源接口 |
XT30
|
支持的核心 |
Orin Nano 4G/8G
|
以太网 |
1x
|
无线网卡 |
1x M.2 Key |
存储扩展 |
1x M.2 Key M (2230 NVME SSD) |
显示 |
1x Mini HDMI V2.1 |
USB |
2x USB3.2 (10Gbps) 1x
|
USB C |
1x Type C (USB2.0) 烧录固件用 |
相机接口 |
1x CSI-22P |
其余接口 |
|
| RTC
|
1x
|
工作温度 |
|
- 本底板支持 12V (9.5V~30V) 供电,请保证电源拥有足够的功率,以保证系统工作正常。当供电电压大于
15V且15V 且负载较大时,请注意加强散热。 - 本产品支持电源输入反接保护,但原则上在任何时刻都不应反接电源。
- 每组
USB接USB 接口合计最大输出电流为 2.5A,当系统监测到电流大于 2.5A时5A 时,会切断USB供USB 供电输出。 - 禁止在载板未断电时拔插核心卡,该行为会导致核心卡及载板损坏,由不规范操作产生的损失将由客户自行承担。
接口布局
| 序号 | 名称 | 序号 | 名称 | ||
|---|---|---|---|---|---|
1 |
XT30
|
|
USB2.0
|
||
2 |
Mini |
|
UART2
|
||
3 |
USB Type C (USB2.0) |
|
UART1 Connector (GH1.25 4p) |
||
| 4 | REC Button (恢复模式) | 14 | CAN Bus (GH1.25 2p) | ||
| 5 | Power Button (电源键) | 15 | RTC 电池接口 | ||
| 6 | PWM 风扇接口 | 16 | 4Pin Switch | ||
| 7 | USB 3.0 Type A (堆叠 x2) | 17 | Camera (#1) Connector 22pin 0.5mm | ||
| 8 | RJ45 网口1 (千兆速率) | 18 | 30Pin 拓展母座 | ||
|
|
| RJ45 网口2 (2.5G速率) |
19 | M.2 M-key 接口 (2230) |
|
|
| Jetson Orin 模组接口 (SODIMM) |
20 | M.2 E-key 接口 (2230) |
|
|
|
|
|
|
|
|
|
|
|
|
|
|
|
|
|
|
|
|
部分功能及接口介绍
电源接口
(1)
电源接口使用 XT30PW-M36接M36 接口,与其配对的连接器型号是 XT30U-F,具体定义如下。
- 推荐输入电压为 12V,可支持的电压范围是 10V-30V。欠压保护电压为 9.5V,过压保护 31V。
- 该接口具有反接保护,但原则上任何时候都需检查好极性,确认正确再接入电源。
- 当使用 ORIN
NANO系NANO 系列时,请保证输入电源拥有最少45W的45W 的输出能力,使用 ORINNX系NX 系列时,请保证输入电源拥有最少60W的60W 的输出能力。
| 核心卡 | 推荐的电源输出能力 | 使用 USBC- |
|||
|---|---|---|---|---|---|
| ORIN NANO 4G/8G | 45W | 最少 20V 2.25A 协议 | |||
|
|
| |||
ORIN NX 8G/16G |
60W |
最少 20V |
REC 按钮 (4)
REC按钮(4)
C2401载载板有两种方式进入恢复模式:
REC按 REC 按钮不放,再接通电源,即可进入恢复模式,进行刷机等操作(请注意,恢复模式仅持续60秒 60 秒,系统检测到无刷机操作后,会自动进入正常开机时序。)
3拨 3 拨动至 ON,这样在每次上电时,系统都将会进入恢复模式。
启动按钮
(5)
C2401设设置了一个启动按钮,该按钮具有以下功能:
C2401
- 系统启动时:按动一次进入关机界面,长按
- 系统关闭时:按动一次进行开机。
10秒 10 秒强制关机。
- 禁用自动开机: 将载板背面的拨码开关
2拨2 拨动至 ON,将禁用上电自动开机,需手动按动启动按钮进行开机。
拓展排母
(18)
该排母规格为 2x15P 1.27mm,第一脚及定义如下:
- VCC
IN的IN 的电压大小取决于输入电压,最大不能超过 3A,VDD_5V和VDD_3V3最VDD_5V 和 VDD_3V3 最大能提供1A电1A 电流。 - I2C、GPIO、SPI、
UART电UART 电平均为 3.3V3V。 PG信PG 信号:当上层板正常工作时,输出高电平。- 13、15、19、
21这21 这组 USB3.0接0 接口,在使用官方固件的情况下默认是关闭的,可开启教程请参考以下教程打开:https://www.linkzeelabs.com/wiki/books/jetson-orin-nano/page/orin-nanonx-usb技术支持链接。
CSI 接口 (17)
CSI摄摄像头接口使用教程请参考:https://www.linkzeelabs.com/wiki/books/jetson-orin-nano/page/b534bCSI 接口说明
USB、串口及 CAN
RTC 电池接口 (15),: 该连接器型号为 MX1.25-2P,使用电池时,请确认好极性,禁止接反电池。接入电池后,需要进行配置才能启用RTC时RTC 时钟。CAN接CAN 接口 (14),: 定义如上图所示,使用 GH1.25-2P接2P 接口。CAN接CAN 接口默认不接入终端电阻,可将载板背面的拨码开关1拨1 拨动至 ON,接入 120Ω 终端电阻。
UART(UART (12)(13),: 使用的连接器型为 GH1.25-4P,接口电平为 3.3V,其中UART2只UART2 只能用于 DEBUG,该接口5V输5V 输出最大电流为 0.5A。USB2.0接USB 2.0 接口 (11),: 使用的连接器型号为 GH1.25-4P,该接口5V输5V 输出最大电流为 0.5A。
RTC时RTC 时钟配置方法,及UART等 UART 等接口使用方法,请参考:配置说明链接。https://www.linkzeelabs.com/wiki/books/jetson-orin-nano/page/3c778
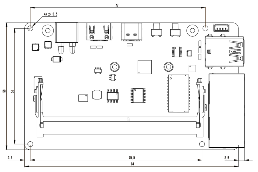
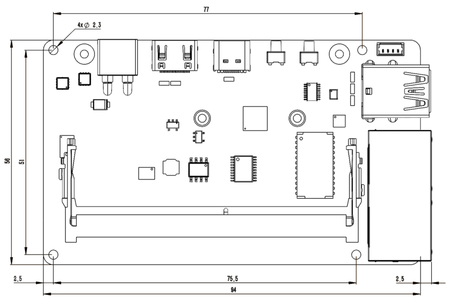
产品载板尺寸 (
mm)
| 位置 | 推荐螺钉规格 | 备注 |
|---|---|---|
|
|
|
载板固定孔 |
M2
|
螺钉或铜柱最大直径不得大于 4.5mm |
核心卡 |
M2.5X4
|
|
|
| 螺钉最大直径不得大于 5mm |
| M.2 连接器 | M2.5X4 薄头螺钉 | 螺钉最大直径不得大于 5mm |



















